



Descrição Geral
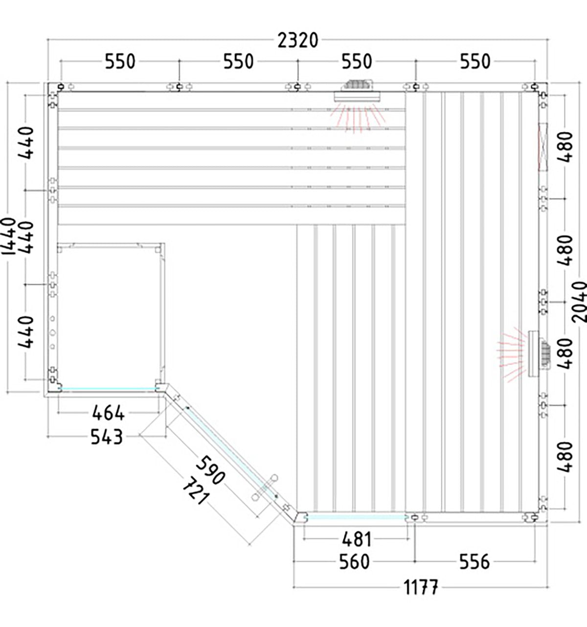
A sauna interior Arktis Infra+ é um modelo premium que combina sauna tradicional finlandesa e aquecimento infravermelho, proporcionando uma experiência completa de relaxamento e bem-estar. Com dimensões de 2340 × 2060 × 2040 mm, é construída em abeto maciço, garantindo durabilidade e beleza natural. O interior em madeira de tília “Prestige” assegura resistência a deformações e rachaduras, além de um acabamento sofisticado e de longa duração.
Com capacidade para até 5 pessoas, a Arktis Infra+ é ideal para uso residencial, spas ou clínicas que procuram conforto, estética e desempenho num só equipamento.
Características
-
Estrutura em abeto maciço com teto robusto.
-
Interior “Prestige” em madeira de tília, resistente e elegante.
-
Três bancos de 620 mm, encostos e dois apoios de cabeça.
-
Painel intermediário entre bancos para maior conforto.
-
Fenda de ventilação integrada para circulação de ar.
-
Lâmpada de canto com proteção (lâmpada não incluída).
-
Porta em vidro de segurança temperado (590 × 1915 × 8 mm), com opção de dobradiça à esquerda ou à direita.
-
Dois painéis em vidro ESG transparente (464 × 1945 × 8 mm / 481 × 1945 × 8 mm).
-
Piso em grade de madeira incluído.
-
Grelha de proteção de madeira para aquecedor.
-
Dois aquecedores infravermelhos de espectro completo, 500 W cada.
-
Unidade de controlo Vario Tronic para aquecedores infravermelhos.
-
Opção adicional: conjunto de LED para iluminação ambiente colorida (Item nº LED-AR-IR / 1-053-363).
Detalhes Técnicos
-
Dimensões da cabine: 2340 × 2060 × 2040 mm
-
Capacidade: até 5 pessoas
-
Potência dos aquecedores infravermelhos: 2 × 500 W
-
Requisitos elétricos:
-
3 cabos de silicone 5 × 2,5 mm² (aquecedor)
-
3 cabos de silicone 3 × 1,5 mm² (iluminação)
-
-
Aquecedor recomendado: 9 kW (não incluído, disponível separadamente)
-
Materiais de montagem e instruções incluídos
-
Opção de montagem espelhada disponível
Perguntas Frequentes
Contacte-nos caso não encontre uma resposta abaixo.
Quais são os benefícios de usar uma sauna?
A exposição ao calor ajuda a relaxar os músculos e a aliviar o stress e a tensão. Estudos demonstram que o calor dilata os vasos sanguíneos, melhorando o fluxo sanguíneo e reduzindo a tensão arterial. A transpiração induzida pela sauna ajuda a eliminar as toxinas do corpo. Além disso, a investigação indica que a utilização regular da sauna pode reforçar o sistema imunitário através do aumento da produção de glóbulos brancos, melhorar a saúde cardiovascular e reduzir o risco de doenças cardíacas. A utilização da sauna durante a noite também facilita o adormecimento. A sensação geral de bem-estar após a sauna é frequentemente atribuída à libertação de endorfinas.
Quais são os benefícios de usar um spa?
A imersão em água quente relaxa os músculos e reduz a pressão nas articulações, tornando-a particularmente benéfica para pessoas com artrite ou dores musculares. Além disso, os jactos de água proporcionam uma massagem profunda dos tecidos, o que pode melhorar a circulação e acelerar a recuperação muscular após exercício intenso. Estudos demonstram que a imersão em água quente pode reduzir os níveis de cortisol, a hormona do stress, promovendo o relaxamento e melhorando a qualidade do sono. Tal como as saunas, os spas também melhoram a saúde cardiovascular, especialmente em indivíduos com tensão arterial elevada, criando um ambiente ideal para o relaxamento mental e o alívio do stress.
Quais são os benefícios de usar um cold plunge?
O mergulho no frio, ou imersão em água fria, tem uma base científica sólida para os seus benefícios. A exposição à água fria reduz a inflamação através da constrição dos vasos sanguíneos e da diminuição da temperatura dos tecidos, tornando-a excelente para a recuperação pós-exercício. Os estudos sugerem que os mergulhos regulares no frio podem ajudar a reduzir a perceção da dor e a diminuir a fadiga muscular. Além disso, o frio ativa o sistema nervoso simpático, aumentando a produção de norepinefrina, uma hormona associada a uma maior concentração e atenção. A imersão em água fria também estimula o metabolismo e pode melhorar o humor devido à libertação de endorfinas e à redução dos níveis de cortisol. Em geral, o mergulho no frio proporciona uma sensação de revitalização e clareza mental, ao mesmo tempo que apoia a recuperação muscular.”
Quanto tempo demorará para receber a minha encomenda?
O prazo de entrega da sua encomenda é confirmado no momento da compra. Se o produto estiver em stock, pode esperar recebê-lo dentro de 1-2 semanas após a realização da encomenda. Se o produto não estiver em stock, o prazo de entrega habitual é entre 4-8 semanas. Esforçamo-nos por entregar os seus produtos o mais rapidamente possível e mantê-lo-emos atualizado sobre o estado da sua encomenda.
Oferecem serviços de instalação?
Sim, oferecemos serviços de instalação profissional para os nossos produtos de sauna e spa. A nossa equipa especializada assegura que os seus produtos sejam instalados corretamente e de forma eficiente. No momento da finalização da compra, pode optar por adicionar os serviços de instalação à sua encomenda, ou pode contactar-nos para mais detalhes sobre agendamento e preços.
Qual é a vossa política de encomendas?
Assim que fizer uma encomenda, receberá um e-mail de confirmação com os detalhes dos produtos, preços e tempo estimado de entrega. Se precisar de fazer alterações ou cancelar a encomenda, é importante contactar-nos dentro de 24 horas. Requeremos um pagamento inicial de 50% no momento da encomenda, com o saldo restante a ser pago antes de agendar a entrega final. As encomendas personalizadas podem ter condições diferentes, que serão comunicadas no momento da compra. Para mais detalhes, consulte os nossos Termos de Venda.
Qual é a garantia dos vossos produtos?
Confiamos na qualidade dos nossos produtos e oferecemos uma garantia abrangente de 3 anos em todos os itens. Esta garantia cobre defeitos de materiais e de fabrico. Se tiver algum problema com o seu produto durante o período de garantia, entre em contacto com a nossa equipa de atendimento ao cliente, e trabalharemos consigo para resolver o problema prontamente. Para mais detalhes sobre a nossa garantia e quaisquer termos específicos do produto, por favor consulte as informações fornecidas no momento da compra.
-
Envio Rápido
Fornecemos envio rápido e seguro diretamente nas suas mãos.
-
Garantia do melhor preço
Produto de alta qualidade com o melhor preço e garantia.
-
Suporte Contínuo
Estamos disponíveis antes e depois da venda, com resposta em até 24 horas.